Michaël Benharrosh

Eco-Farm Resort – Sao Tome & Principe

- ROLE

Design / Building Permit

Construction Documents

Value Engineering


- FOR

D.L.2.A​ Paris,France


- DATE

2013


- TYPE

Hospitality


- PROJECT DESCRIPTION

In early 2010, Mark Shuttleworth (Linux Ubuntu Founder) initiated heavy investments to develop Eco-Tourism in the Island of Sao Tome & Principe. These two former portuguese colonies, also known for harvesting among the best cocoa beans became a destination to explore wilderness and high exotic landscapes.


In 2011, Architect Didier Lefort was awarded the design of 4 luxury hotels on Principe Island.


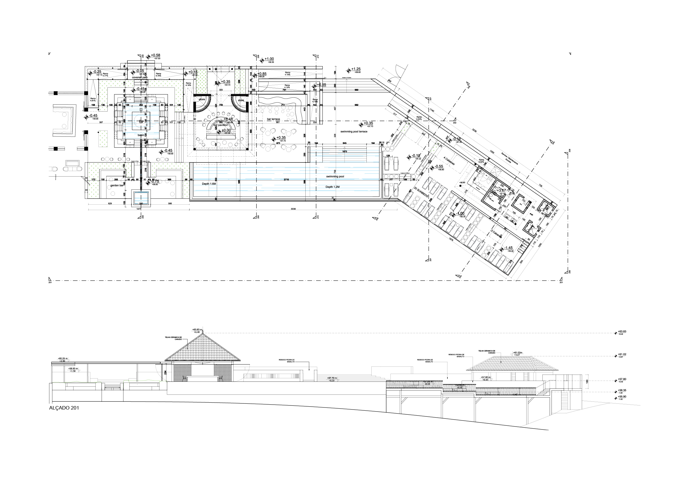
Paciencia project is a former cocoa plantation located in a dense forest environment.Careful Refurbishment with the mindset of preserving cultural heritage was the main driving force behind its concept.

Refurbishing of 17th Century colonial farm in equatorial Africa into an Ecor-Farm resort.

43 Rooms, Swimming Pool, Fitness and specialty restaurant.

Cultural heritage preservation techniques and use of roman tile carpentry.